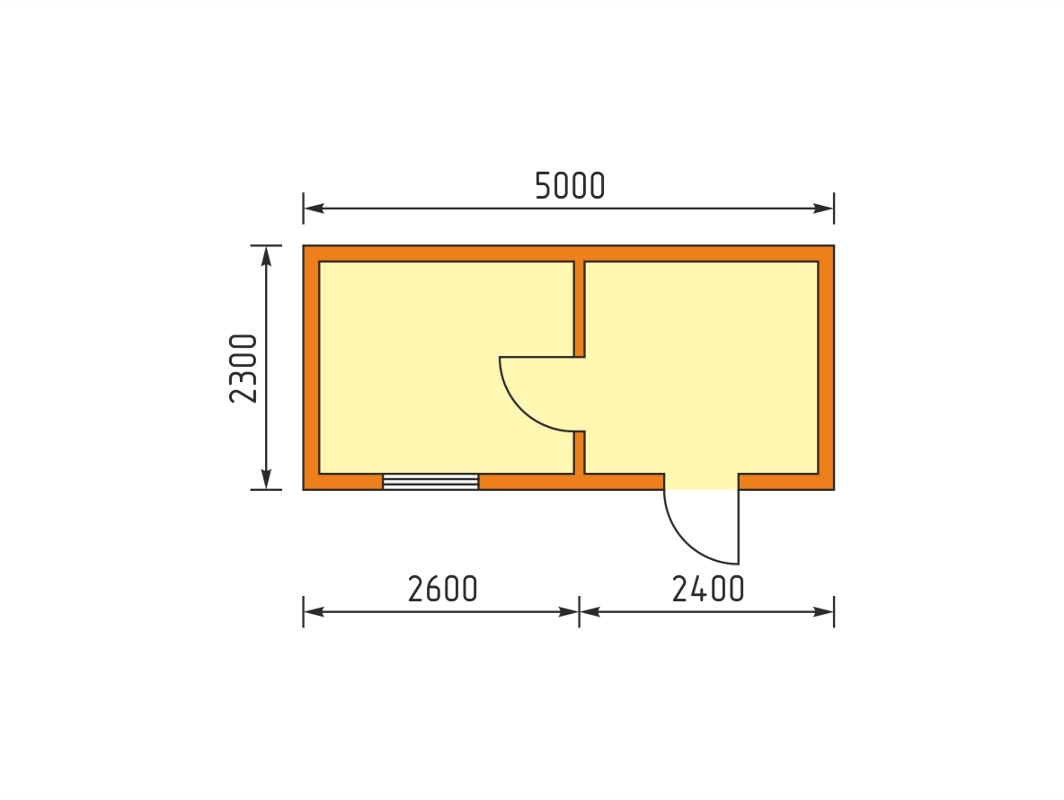
Бытовка 5 x 2,3 м
от 70 000
р.
Базовая комплектация бытовки:
  • Основание пола — брус 100 х 150 мм естественной влажности.
  • Черновой пол — доска 25 х 100-150 мм естественной влажности.
  • Лаги пола — брусок 50 х 50 мм с шагом 600 мм естественной влажности.
  • Чистовой пол — панель ОСП 12 мм.
  • Каркас стен — брус 50 х 50 мм естественной влажности.
  • Наружная отделка — вагонка.
  • Утепление — 50 мм минеральная вата (стены, пол, потолок) + ветрозащита + пароизоляция.
  • Внутренняя отделка — вагонка.
  • Окно — 900 х 600 мм деревянное открывающееся.
  • Двери — 2000 x 900 мм деревянные каркасные, обшиты вагонкой.
  • Стропила — доска 40 х 100 мм с шагом 600 мм.
  • Обрешетка кровли — доска 25 х 100 мм.
  • Кровельное покрытие — профилированный оцинкованный стальной лист.
  • Свесы кровли — по 10 см с каждой стороны.
  • Установка на блочный фундамент.

В случае отсутствия возможности для подъезда манипулятора, возможна сборка на участке – оплачивается отдельно, доставка также оплачиваются отдельно и зависит от удаленности.

Также возможно изготовление бытовок других размеров и комплектаций.

Дополнительно:
  • Покрытие кровли профлистом, гибкой или металлочерепицей.
  • Установка металлической двери.
  • Установка пластиковых окон.
  • Замена наружной отделки на плиту ОСП, имитацию бруса, блок хаус.
  • Устройство перегородок.
  • Усиление каркаса – доска 40 х 100 мм.
  • Распашные двери.
  • Настил линолеума.
  • Окраска антисептиком или краской.
  • Сборка на участке.